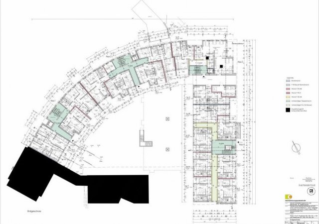
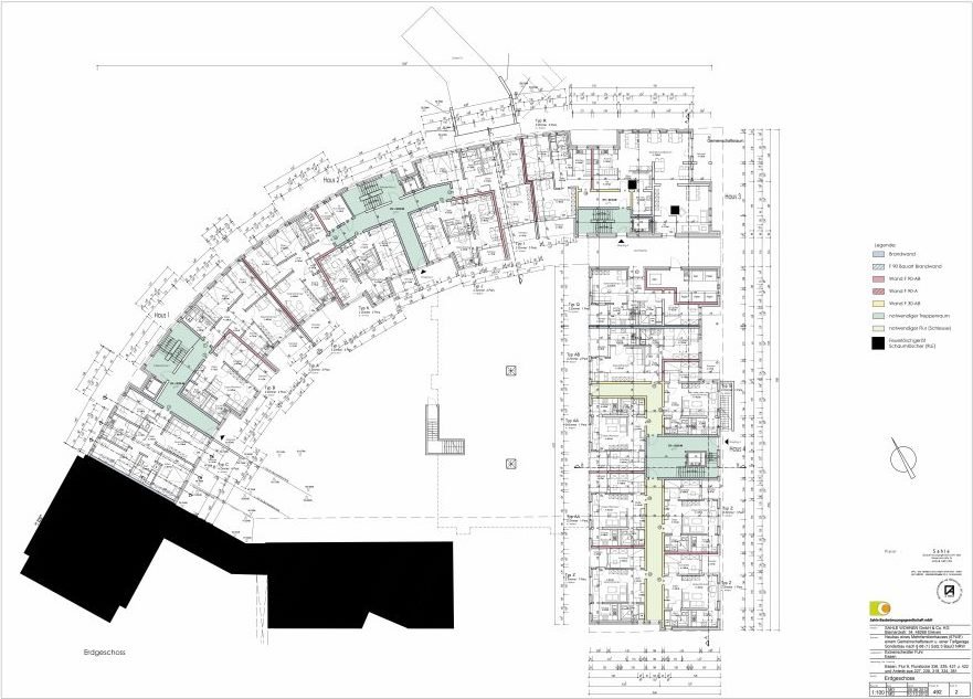
Neubau eines Mehrfamilienhauses (67 WE) mit Tiefgarage
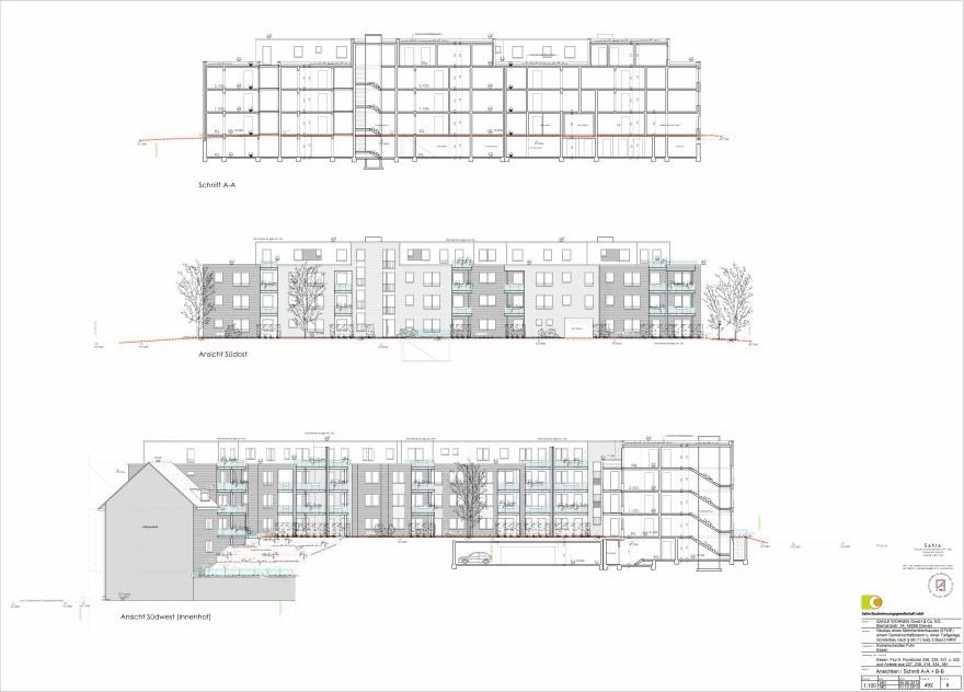
Am Eickenscheidter Fuhr in Essen entsteht ein unterkellertes, viergeschossiges Mehrfamilienhaus mit insgesamt 67 Wohneinheiten und einer Tiefgarage. Das oberste Geschoss ist als Staffelgeschoss konzipiert.
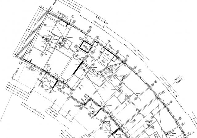
Das Gebäude wird in Massivbauweise mit Stahlbetondecken errichtet. Die tragenden Innenwände werden planmäßig als unbewehrte Betonwände ausgeführt.
Das Gesamtgebäude wird durch Gebäudefugen bis zur Gründung in vier Häuser unterteilt.
Die Gründung erfolgt im wesentlichen Teilen über elastisch gebettete Bodenplatten auf tragfähigem Baugrund.
| Jahr: | 2014 |
| Bauherr: | Sahle Baubetreuungsgesellschaft mbH |
| Leistungen: |
|









