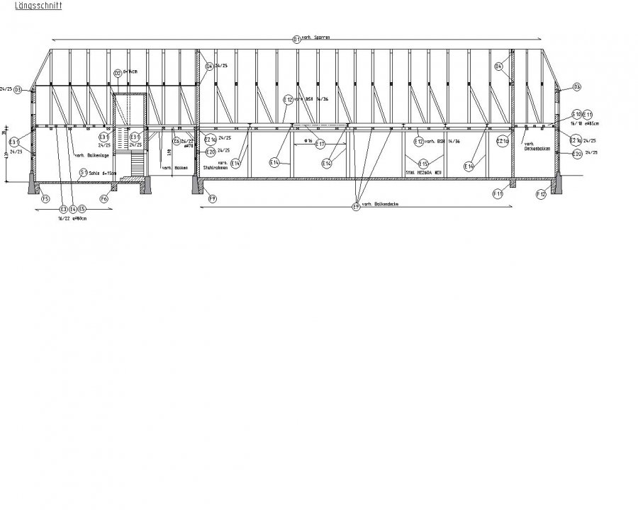
Sanierung und Umnutzung der Gebäude zum „Kulturgut Haus Nottbeck“
Das aus vier Bauteilen bestehende Landgut wurde in mehreren Bauabschnitten zu einem Literaturmuseum und Tagungs- bzw. Gästehaus umgebaut.
Die hochgradig wertvolle, denkmalgeschützte Bausubstanz wurde hierbei erhalten und stellte erhöhte Anforderungen an alle an der Planung und Ausführung Beteiligten.
Das Projekt war eines der Leuchtturmprojekte der Regionale 2004 links und rechts der Ems.
| Architekt: | Altefrohe Planungsgesellschaft, Warendorf |
| Bauherr: | Kreis Warendorf |
| Leistungen: |
|















