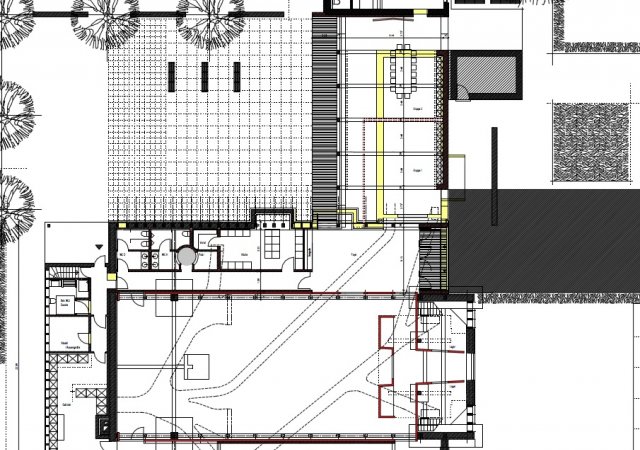
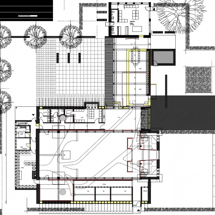
Umbau und Erweiterung des Gemeindezentrums St. Suitbert in Recklinghausen-Hochlar
In Zuge der Maßnahmen wurde das vorhandene Zwischengebäude bis auf die Gründung zurückgebaut und durch ein größeres Gebäude ersetzt, welches die Kirche und das Jugendzentrum miteinander verbindet.
Im Bereich des Hauptgebäudes wurde der vorhandene Kirchenraum unterteilt um neue Räume für das Pfarrbüro und das Pfarrheim zu schaffen. Die Nord- und Südfassade des Gebäudes, sowie die Fußböden und das Dach der Seitenschiffe der Kirche wurden energetisch saniert. Durch den Einbau von bodentiefen Fenstern wurden die vorhandenen Fassadenstützen und die darunterliegenden Mauerwerkswände zurückgebaut und durch neue Fertigteilstützen ersetzt.
Das Bestandsgebäude und der Erweiterungsbau wurden in Massivbauweise errichtet.
| Jahr: | 2011 |
| Architekt: | MEYER ARCHITEKTEN, Lüdinghausen |
| Bauherr: | Kath. Kirchengemeinde St. Katharina von Siena, Recklinghausen - Gemeinde St. Suitbert |
| Leistungen: |
|




