Neubau einer Brauerei in Oelde
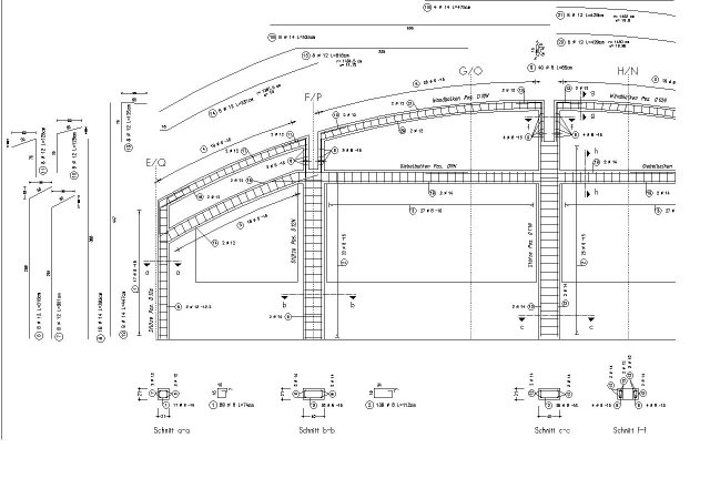
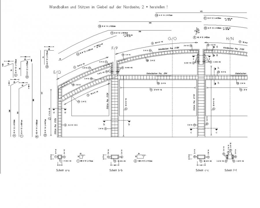
Die in mehreren Bauabschnitten erstellte Brauerei wurde größtenteils als Stahlbetonskelettbau erstellt. Sie beinhaltet neben den eigentlichen Produktions- und Lagerstätten ebenfalls eine Gastwirtschaft, den Verwaltungstrakt, ein Brauereimuseum sowie ein Wasserhaus.
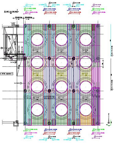
Die Dachkonstruktion oberhalb der Gär- und Lagertanks wurde demontierbar ausgeführt, um einen Austausch der Tankelemente jederzeit gewährleisten zu können.
| Architekt: | Dipl.-Ing. Eckhard Hilker, Oelde |
| Bauherr: | Pott's Brauerei, Oelde |
| Leistungen: |
|







